طراحی معماری در طرح های مسکونی، طراحی پلان، از اهمیت ویژه ای برخوردار می باشد. دکوراسیون داخلی ساختمان، با توجه به نیازهای ساکنین آن طراحی می شود. معمولا طراحی پلان، با توجه به ساختمانی که طراحی می شود متفاوت است به طور مثال، طراحی ویلا با طراحی آپارتمان مسکونی کاملا متفاوت می باشد، در طراحی ساختمان ویلایی، بیشتر فضاها بصورت باز و نیمه باز طراحی می شود. امروزه توجه به نمای این گونه ساختمان ها نیز از اهمیت بالایی برخوردار است، معمولا نماها با توجه به سلیقه کارفرمایان انتخاب می شود که به سبک مدرن یا کلاسیک طراحی و اجرا می شود. باید به این امر نیز توجه کرد که طراحی دکوراسیون داخلی در طراحی ساختمان به نحوی باشد که با نمای انتخاب شده (مدرن یا کلاسیک) از طرف کارفرما، همخوانی کامل داشته باشد.
شرکت مهندسین مشاور رایان سازه در زمینه طراحی معماری، شامل طراحی فاز 1 و 2 معماری، طراحی داخلی و دکوراسیون داخلی و طراحی منظر فعالیت گستره و طولانی داشته و تاکنون ارائه گر پروژه های بزرگ و موفق داخلی و خارجی بوده است.
این شرکت با در اختیار داشتن توانایی بالای هنری و علمی تیم مهندسی خود و با استفاده از نرم افزارهای مدرن جهانی و امکانات کامل اجرایی و عمرانی موفق به طراحی فضاهای متنوع، کارآمد و خاص تجاری - اداری - مسکونی - فرهنگی - صنعتی و .... بوده است.
طراحی معماری در این شرکت مبتنی بر بستر پروژه است و هر پروژه با توجه به موضوع، کاربری، مکان، اندازه و شرایط محیطی موجود طراحی می شود.
این شرکت ضمن پیروی از خطوط و ایده های ناب معماران خود کلیه اصول و استانداردها و ضوابط طراحی را در کلیه پروژه های خود رعایت کرده و تمامی طرح ها منطبق بر مقررات ملی ساختمان می باشند.
مهم خواسته کارفرماست. قبل از هرچیز باید بدانیم کاربری ساختمان چیست و قرار است از فضاهای ساختمان چه استفاده ایی بشود.
در مرحله بعد باید از سایت مورد نظر بازدید و مکان پروژه به طورکامل ارزیابی شود. همسایه ها، موقعیت های دسترسی، جهت گیری جغرافیایی همه و همه کمک خواهد کرد تا طراح تصمیمات مهمی در طراحی خود اعمال کند. اقلیم منطقه ی طراحی نیز بسیار مهم و حائز اهمیت است.
در این مرحله طراح به بررسی نمونه های مرتبط اجرا شده می پردازد. نمونه های اجرایی موفق به کمک طراح می آیند تا بداند به چه نکاتی بیشتر باید توجه کند.
بعد از تجزیه و تحلیل اطلاعات در بخش های مختلف، مفهوم کلی و کانسپت اولیه طراحی در مغز طراح شکل می گیرد.
در این مرحله کاربری فضا از اهمیت ویژه ایی برخوردار است. در صورتی که بنا کاربری فرهنگی و اجتماعی داشته باشد طرح مفهومی تر طراحی می شود و در پروژه هایی مانند بیمارستان و پایانه های مسافربری که بیشتر با افراد و رفت و آمد های پی در پی مواجهیم طرح از رویکرد مفهومی دور شده و بیشتر جنبه های کاربری پیدا می کند.
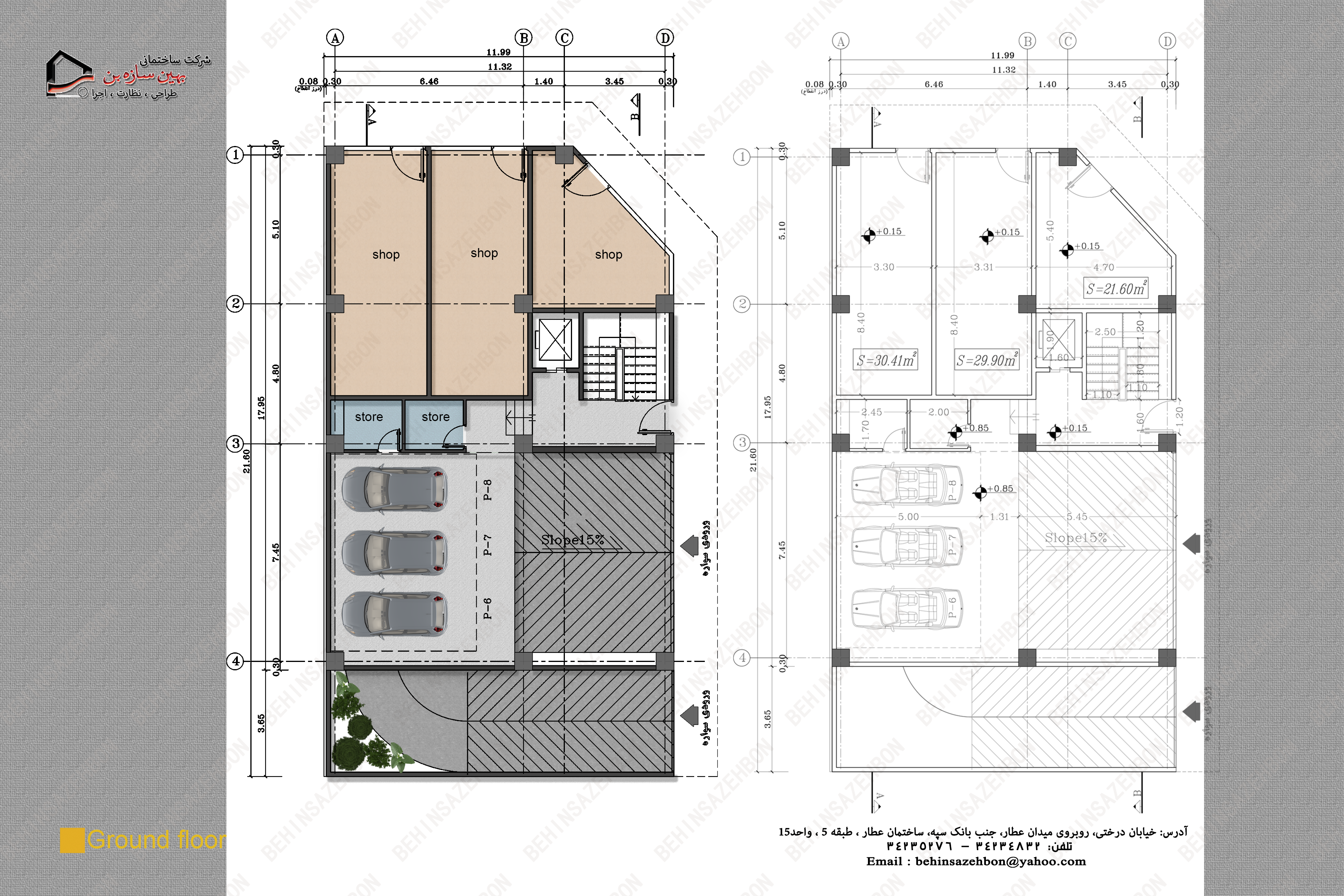
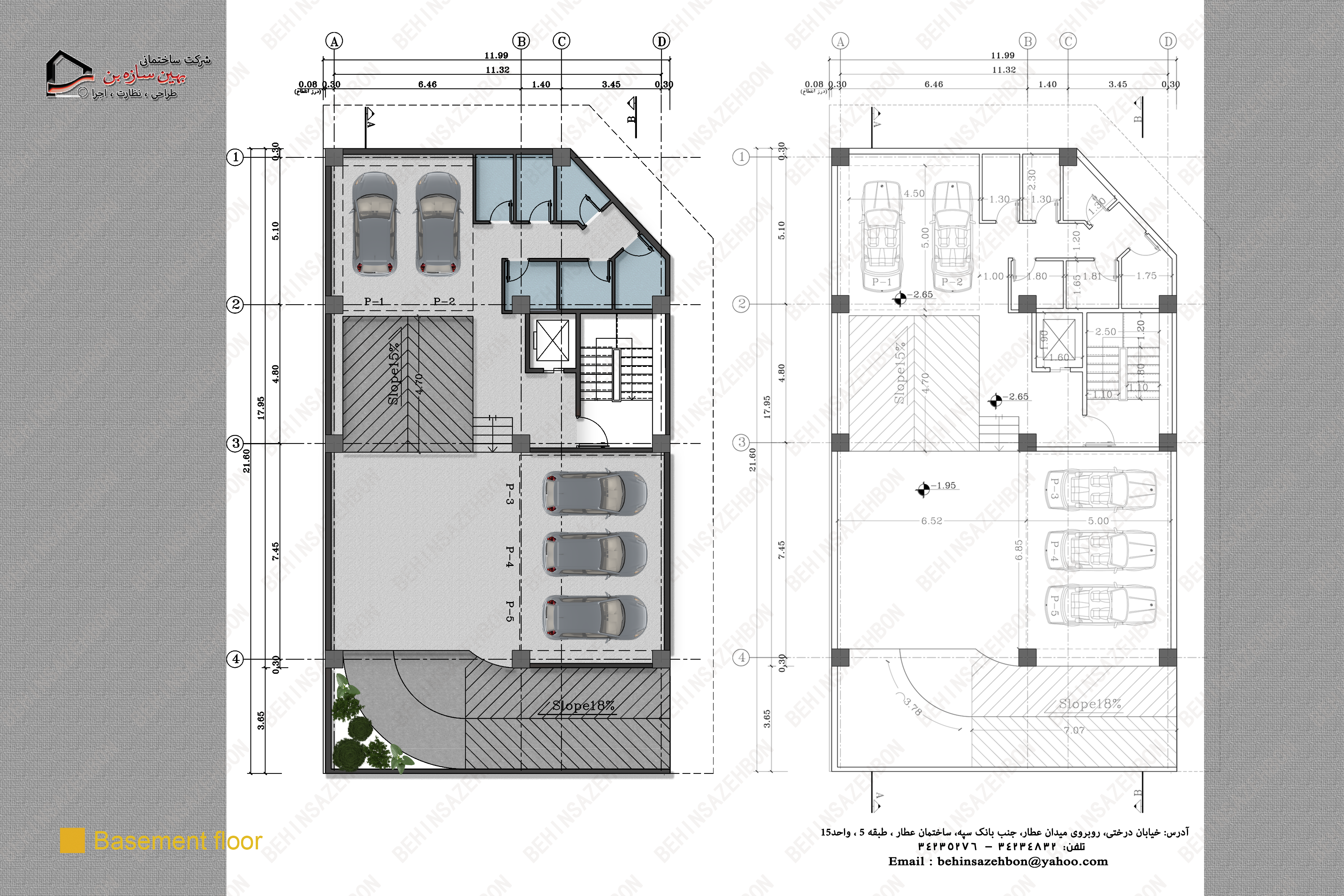
حالا نوبت به برنامه ریزی فیزیکی و طراحی دیاگرام و لکه گذاری و عرصه بندی فضاها است. بعد از طراحی فضاها حجم ساختمان طراحی می شود و بعد از آن به ترسیم نقشه ها (پلان - برش - نما - حجم 3 بعدی) می پردازیم.
در طرح های اداری که معمولا دارای رفت و آمدهای زیادی هستند، طراحی پلان و وجود سیرکولاسیون مناسب از اهمیت بالایی برخوردار است. معمولا ساختمان های اداری با توجه به ریز فضاهایی که مورد نیازاند، طراحی و اجرا می شوند.